Property Details
Sobha Crystal Meadows Villas
Project Location
Mullur, off Sarjapur Road
Total Land Area
26.6 Acres
No. Of Units
290 Units
Unit Variants
4 BHK
Possession Time
Dec, 2029
RERA Registration Number
PRM/KA/RERA/1251/446/AG/170926/000120
Description

Sobha Crystal Meadows is the brand new ultra-luxury Row House villa project launched in Mullur near Varthur Road just off Wipro Gate 1, Sarjapur Road, Bangalore.

The massive residential enclave Sobha Crystal Meadows is a Victorian-themed development heavily inspired by the iconic and grand Crystal Palace in London, Britain. Sobha Codename Millionaires Row is spread across over 26 acres of prime real estate and features the very best in the renowned Sobha Limited’s luxury Row House segment. The project offers spacious 4BHK Triplex Row House Villas with the best green features and luxurious amenities.

Beautiful landscaping with over 18 acres of green spaces, a serene environment all around Sobha Mullur Row Houses, and private gardens with 2 car parking spaces for each Row House villa in the project make it more special & Elite.

The builder is guaranteed to bring a quality living experience to the community of Mullur right off Sarjapur Road near Chikkabellandur, Varthur Road, and Carmelaram in East Bangalore with brilliant Crystal Palace-themed architecture and an equivalent lifestyle in Sobha Mullur Row Houses.

Sobha Crystal Meadows Location has excellent connectivity & it is located in Mullur right off Wipro Gate 1 at the crux of Carmelaram, Varthur Road, Sarjapur Road, and Dommasandra junctions near plenty of existing and upcoming communities & facilities.

Some of the World Class Amenities at Sobha Crystal Meadows include 2 clubhouses, 11+ acres of landscaped gardens, recreation areas, a children’s play area, a multipurpose party area, and meticulously planned with utmost importance to state-of-the-art 24/7 securities.

Unit Types
Unit Type Saleable Area RERA Carpet Area Price
4 BHK 4284 - 4814 Sqft N/A ₹ 10.6 - 12.9 Cr
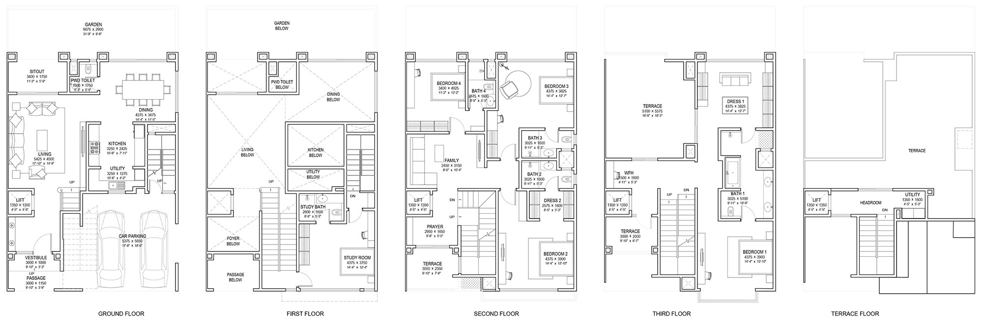
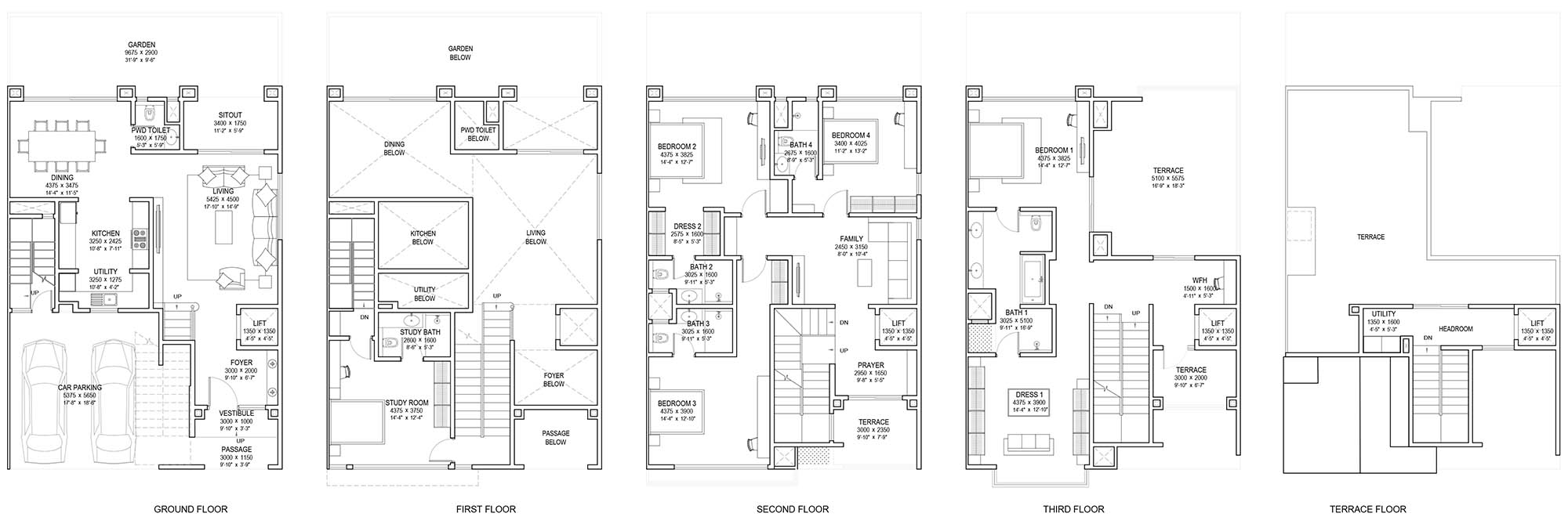
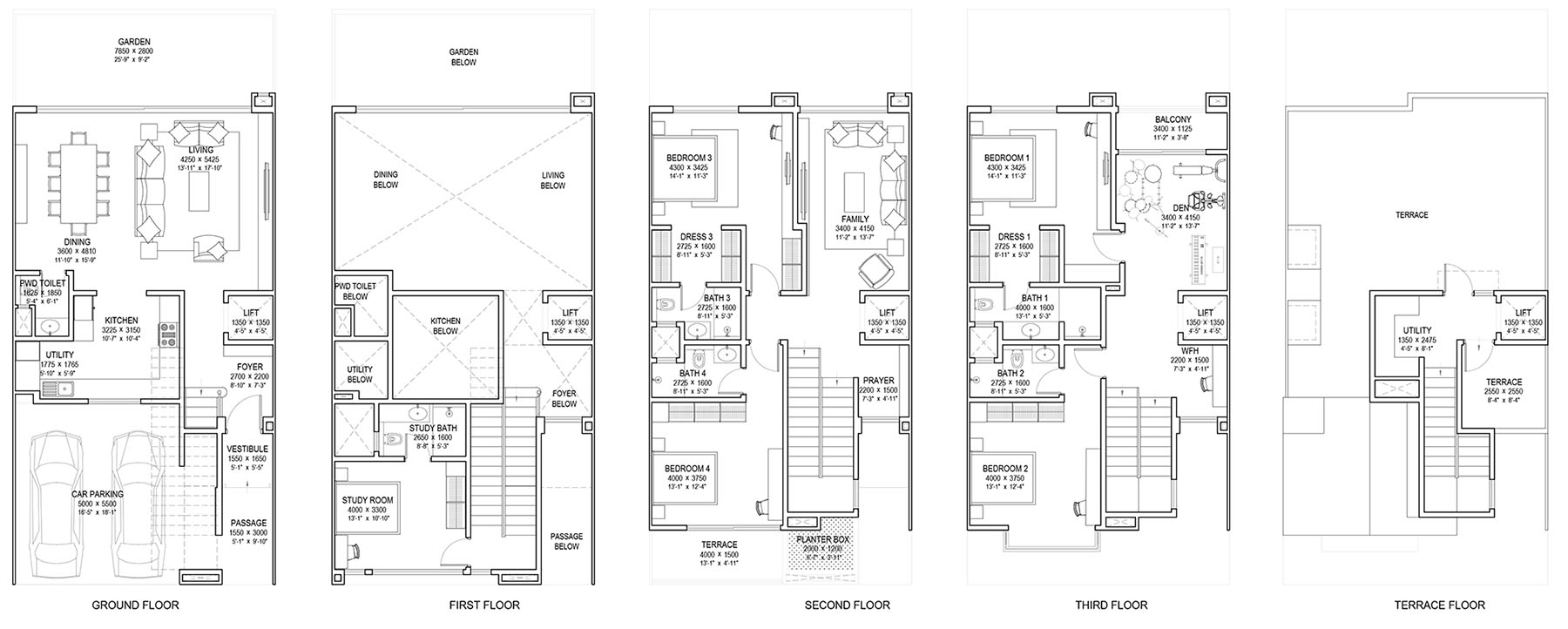
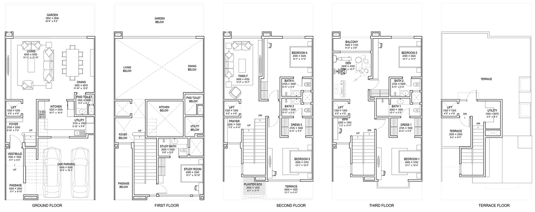
Floor Plans
Amenities
Features
  • Structure

    RCC framed structure Building.
    Concrete Solid Block Masonry.

  • Flooring

    Bedrooms / Foyer / Living / Dining / Home office: Stone/Vitrified tile flooring and skirting.
    Anti-Skid Ceramic Tile flooring in bathrooms, and balconies.

  • Doors

    Main Doors/Bedroom Doors: Frame – Timber, Architrave – Timber, Shutters – with both side HDF skin.
    Bathroom Doors: Frame – Timber, Architrave – Timber, Shutters – with outside HDF and inside laminate.
    Aluminum /UPVC glazed windows & sliding doors.

  • Plumbing and Sanitary

    Sanitary fixtures of reputed make in all toilets.
    Chromium-plated fittings in all toilets.
    Rainwater Harvesting drain pipes included.

  • Security

    Round-the-clock security with an intercom facility.
    CCTV Cameras at all vantage points.

  • Electrical

    For 4 Bedroom Row House – 14 Kilowatts three phase supply.
    Modular switches of reputed make.
    Copper electrical wiring throughout via concealed conduits.
    DG power backup of 3 KW for each rowhouse and 100% power backup for common facilities.

Location
Commute Time from Sobha Crystal Meadows
Sobha Crystal Meadows
 
Bank Offers

SOBHA Limited

  • SOBHA Limited

    Founded in the year 1995, Sobha Limited is one of the largest real estate development company in India. It’s a Rs. 22 billion company based out of Bangalore and having projects spread across 13 states and 24 cities.

    Sobha Limited is primarily focused on the development of residential and contractual projects. The residential projects range from villas and row houses to plotted development, presidential apartments, luxury, and super luxury apartments. Every Sobha project comes equipped with every major amenity including shopping complex, clubhouse, and swimming pool.

    Presently, almost 35 residential projects are under construction aggregating to 27.32 million sq. ft. of space under development. 18.90 million sq. ft. of saleable space in addition to ongoing contractual projects adding up to almost 9.50 million square feet of area.

    Sobha has constructed a wide array of structures for prestigious corporate clients most noteworthy being Dell, Institute of Public Enterprises (IPE), Taj Group, Hotel Leela Ventures, Infosys, Bosch, HP, Biocon, Timken and more.